【売却済】武蔵新城倉庫
- 所在地
-
所在地
神奈川県川崎市高津区千年新町26-2
地番
神奈川県川崎市高津区千年新町26番2
交通
南武線「武蔵新城」駅 徒歩約8分
- 土地
-
面積
245.52㎡ (74.27坪)
道路
西側 公道 4m
- 建物
-
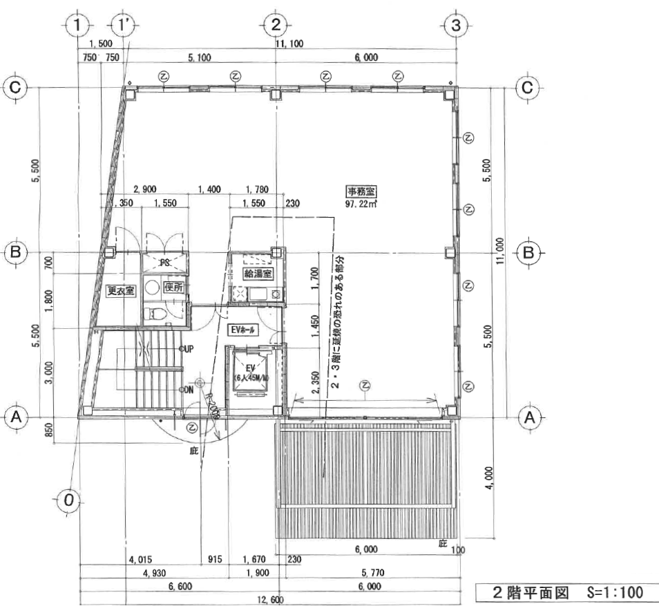
構造
鉄骨造亜鉛メッキ鋼板葺 3階建
築年月
2004年3月
延床面積
391.14㎡ (118.32坪)
種類
倉庫・事務所
検査済
有り
- 都市計画
-
用途地域
近隣商業地域
建蔽率
80%
容積率
200%
- その他
-
備考
・駐車場:前面5台
・2024年8月 修繕工事実施済

















